Casa em condomínio - Condomínio Praiaville - Piatã - Salvador/BA

Avenida Orlando Gomes, 2306, Salvador, BA

Imóvel Ocupado
2901 Visitas

Informações sobre o Lote

LEILÃO DE ALIENAÇÃO FIDUCIÁRIA - BANCO ITAÚ - PRESENCIAL E ON-LINE!

1º leilão: 27 de maio de 2024, às 16h00min - Lance Mínimo - R$ 900.222,91

2º leilão: 07 de junho de 2024, às 16h00min - Lance Mínimo - R$ 692.440,13

Casa nº 76, do Condomínio Praiaville, unidade do Tipo A

Localização: Av. Orlando Gomes, 2306 - Piatã, Salvador - BA, 41650-010

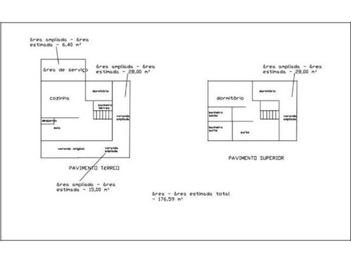
Área privativa: 176,59m²

Área total: 185,74m²

Distribuição Interna: pavimento térreo de living, varanda, cozinha, hall, sanitário social, quarto e escada de acesso ao pavimento superior e, nesse, dois quartos, sendo uma suíte, sanitário social, circulação e escada de acesso ao pavimento térreo.

Matrícula: nº 13.563

RGI: do 7º Ofício do Registro de Imóveis e Hipotecas de Salvador/BA

Inscrição Prefeitura: 556085- 3


CONSIDERAÇÕES IMPORTANTES:

- Venda condicionada ao não exercício do direito de preferência do fiduciante.

- Condição de pagamento - somente à vista;

- Vide condições de venda no EDITAL;

- Imóvel ocupado. Venda em caráter “ad corpus” e no estado de conservação em que se encontra.

(PDTEC)

1º Leilão: 27/05/2024 às 16h00

2º Leilão: 07/06/2024 às 16h00

Maior lance atual:
R$ 0,00
Lance inicial:
R$ 692.440,13
Incremento Mínimo:
+R$ 5.000,00
Sem Licitantes
Entre no sistema para se Habilitar
Entrar no Auditório
Consulte o edital e documentação
Ver histórico de lances
Para este leilão, pagamento somente à vista.
Cadastre-se na nossa newsletter

Inscreva-se e fique por dentro das melhores oportunidades de leilões de imóveis, veículos e muito mais!